GEFIS Gewerbeflächen-Informationssystem

Gewerbegebiet Karlshöfenerberg, Teil 3 (Grundstück Nr. 2) in Gnarrenburg, Landkreis Rotenburg (Wümme)

Lage in der Metropolregion Hamburg
Lage in der Metropolregion Hamburg
Lage in der gesuchten Region
Lage in der gesuchten Region
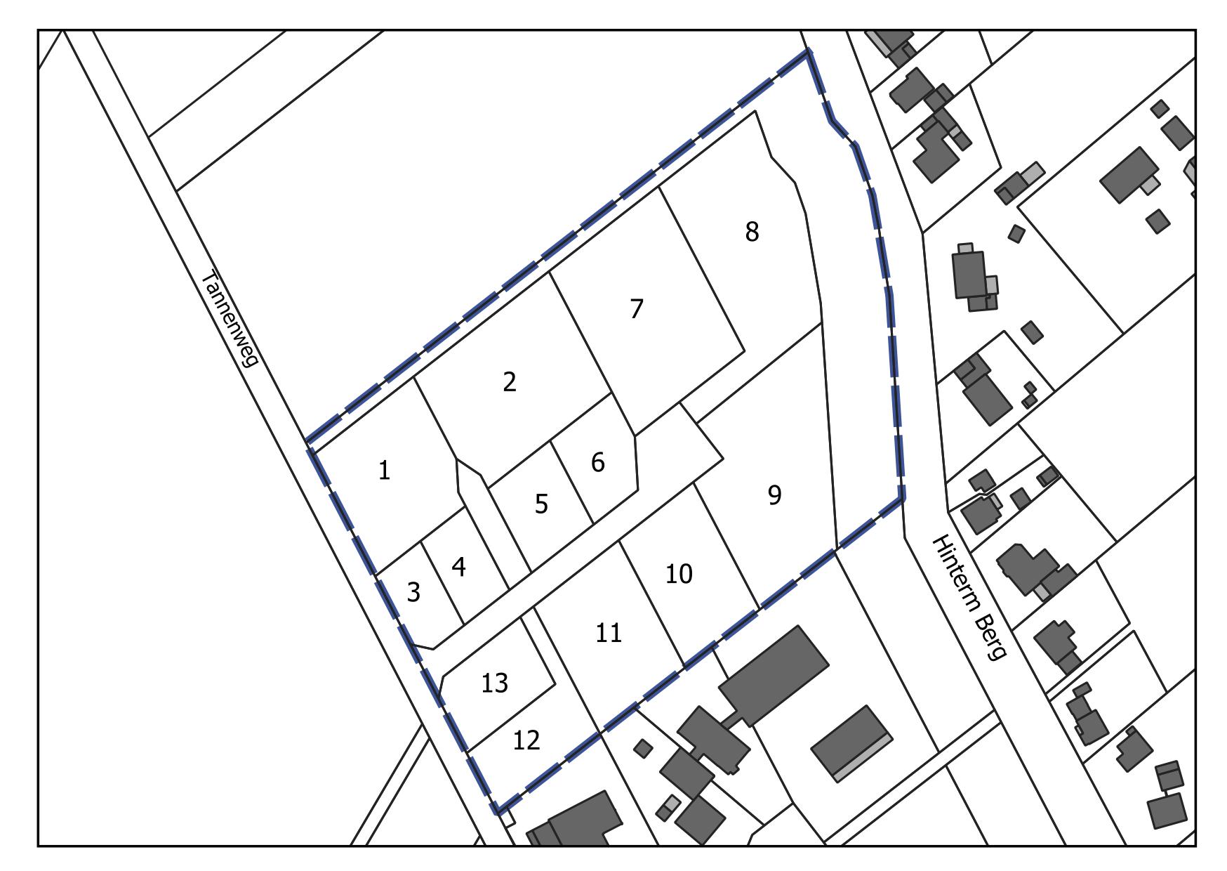
Detaildarstellung der gesuchten Gewerbefläche
Detaildarstellung der gesuchten Gewerbefläche

Legende

Verfügbarkeiten
Sofort
Kurzfristig (bis 2 Jahre)
Mittelfristig (2-5 Jahre)
Langfristig (> 5 Jahre)
Optionsfläche (verbindlich reserviert)
Betriebliche Vorsorgefläche
Nicht verfügbar

Kurzbeschreibung

Beschreibung Gewerbefläche
Gewerbegebiet Karlshöfenerberg, Teil 3
Gemeinde/Stadt
Gnarrenburg

Grundstück

Größe des Grundstücks (m²)
2.956
Verfügbarkeit
sofort
Schwerpunktnutzung
Grünland
Weitere Nutzung
nicht vorhanden

Planungsrechtliche Situation

Fläche planungsrechtlich gesichert
ja
Baufläche gemäß FNP
gewerbliche Bauflächen
Vorliegendes Planungsrecht
§30 BauGB (qualifizierter Bebauungsplan)

Art und Maß der baulichen Nutzung

Besondere Art der baulichen Nutzung
GE
Erschließungssituation
teilerschlossen
Möglichkeit des 24-Stunden- Betriebs
keine Angabe
Mögliche Grundflächenzahl
0,8
Mögliche Geschossflächenzahl
nicht festgelegt
Mögliche Zahl der Vollgeschosse
nicht festgelegt
Mögliche Höhe baulicher Anlagen
12
Baumassenzahl/Baumasse (BMZ)
nicht festgelegt

Nutzungsausschlüsse/Restriktionen

Restriktionen (Mobilisierungshemmnisse)
keine

Infrastruktur der Fläche

Breitbandverfügbarkeit (mind. 50 MBit/s)
keine Angabe
Kaikante
nein
Kai-Kante an seeschifftiefem Wasser
nein
Direkter Gleisanschluss
nein
Stromanschluss
keine Angabe
Gasanschluss
keine Angabe
Wasseranschluss
ja
Abwasseranschluss
keine Angabe

Eigentumsrechtliche Situation und Vermarktungsabsicht

Eigentumsrechtliche Situation
öffentlich

Detailinformationen zum Gewerbegebiet

Bruttofläche (ha)
3,1975
Branchenschwerpunkte
sonstige Dienstleistungen Handwerk Metallerzeugung sowie Be- und Verarbeitung Forschung und Entwicklung Maschinen- und Fahrzeugbau gemischte Branchenstruktur Herstellung von Datenverarbeitungsgeräten, optischen Erzeugnissen u. elektrischen Ausrüstungen Handel, Instandhaltung und Reparatur von Kraftfahrzeugen Logistikwirtschaft und Lagerei Baugewerbe unternehmensnahe Dienstleistungen sonstiges Verarbeitendes Gewerbe Informations- und Kommunikationswirtschaft keine Angabe Großhandel Ver- und Entsorgungsgewerbe unbekannt haushaltsbezogene Dienstleistungen
Standorttyp des Gewerbegebiets
sonstige Standorte klassisches Gewerbegebiet unbekannt Standort für Handwerk und Kleingewerbe keine Angabe

Verkehrsanbindung

Autobahn
A 1
29,9  km
Autobahn
A 27
33,6  km
Autobahn
A 270
37,1  km
Autobahn
A 281
38,2  km
Autobahn
A 26
46,5  km
Bundesstraße
B 74
5,6  km
Bundesstraße
B 71
10,1  km
Internationaler Flughafen
Flughafen Bremen
46,5  km
Internationaler Flughafen
Flughafen Hamburg
94,6  km
Regionalflughafen
Cuxhaven
63,2  km
Verkehrslandeplatz
Rotenburg (Wümme)
39,5  km
Verkehrslandeplatz
Weser-Wümme
44,6  km
Hafen
Seehafen Stade-Bützfleth
50,1  km
Hafen
Seehafen Glückstadt
69,7  km
Hafen
Seehafen Stadt Cuxhaven
71,7  km
Hafen
Seehafen FHH
75,1  km
Kombiterminal
Industriebahnhof Stade-Brunshausen
47,5  km
Kombiterminal
Terminal Cuxhaven (trimodal)
70,9  km
Kombiterminal
Holborn Raffinerie (FHH, trimodal)
75,2  km
Schienenpersonenverkehr
Bremervörde
17,1  km
Schienenpersonenverkehr
Oerel
17,4  km
Schienenpersonenverkehr
Stubben
20,2  km
Schienenpersonenverkehr
Frelsdorf
20,6  km
Schienenpersonenverkehr
Heinschenwalde
20,7  km
ÖPNV
Karlshöfen Berg
0,9  km
Angabe des Vorhandenseins von ÖPNV
eingeschränkt vorhanden

Links zum Gewerbegebiet

Fotos vom Gewerbegebiet

Informationen über Gnarrenburg

BIP/pro Kopf (in €) (Kreisebene)
82.440,00
Arbeitslosenquote (in %) (Kreisebene)
3,80
Einwohnerzahl der Gemeinde
9.205
Gewerbesteuerhebesatz (in %)
400
Grundsteuer B (in %)
410
Beschreibung
Sie sind auf der Suche nach einem attraktiven und leistungsfähigen Wirtschaftsstandort mit Zukunft? Mit einer ausgezeichneten Infrastruktur, einer guten Verkehrsanbindung und vielfältigen Gewerbeflächenangeboten, dann sind Sie in der Gemeinde Gnarrenburg genau richtig. In unserem Branchenbuch haben Sie die Möglichkeit, gezielt Informationen über Unternehmen aus dem Wirtschaftsraum Gnarrenburg abzurufen, die sich bisher der Internet-Präsentation der Gemeinde Gnarrenburg angeschlossen haben. Unternehmenseigene Internetseiten sind über einen Link direkt erreichbar.

Fotos vom Standort

Kontakt

Frank Schröder
Gemeinde Gnarrenburg
Verwaltungsleitung
Bahnhofstraße 1
Gnarrenburg
Eileen Rietzke
Gemeinde Gnarrenburg
Fachbereich 5 - Bauleitplanung und Umwelt
Bahnhofstraße 1
27442 Gnarrenburg
PDF (Deutsch) PDF (Englisch) Exposé schließen

Kontakt

Frank Schröder
Gemeinde Gnarrenburg
Verwaltungsleitung
Bahnhofstraße 1
Gnarrenburg
Eileen Rietzke
Gemeinde Gnarrenburg
Fachbereich 5 - Bauleitplanung und Umwelt
Bahnhofstraße 1
27442 Gnarrenburg